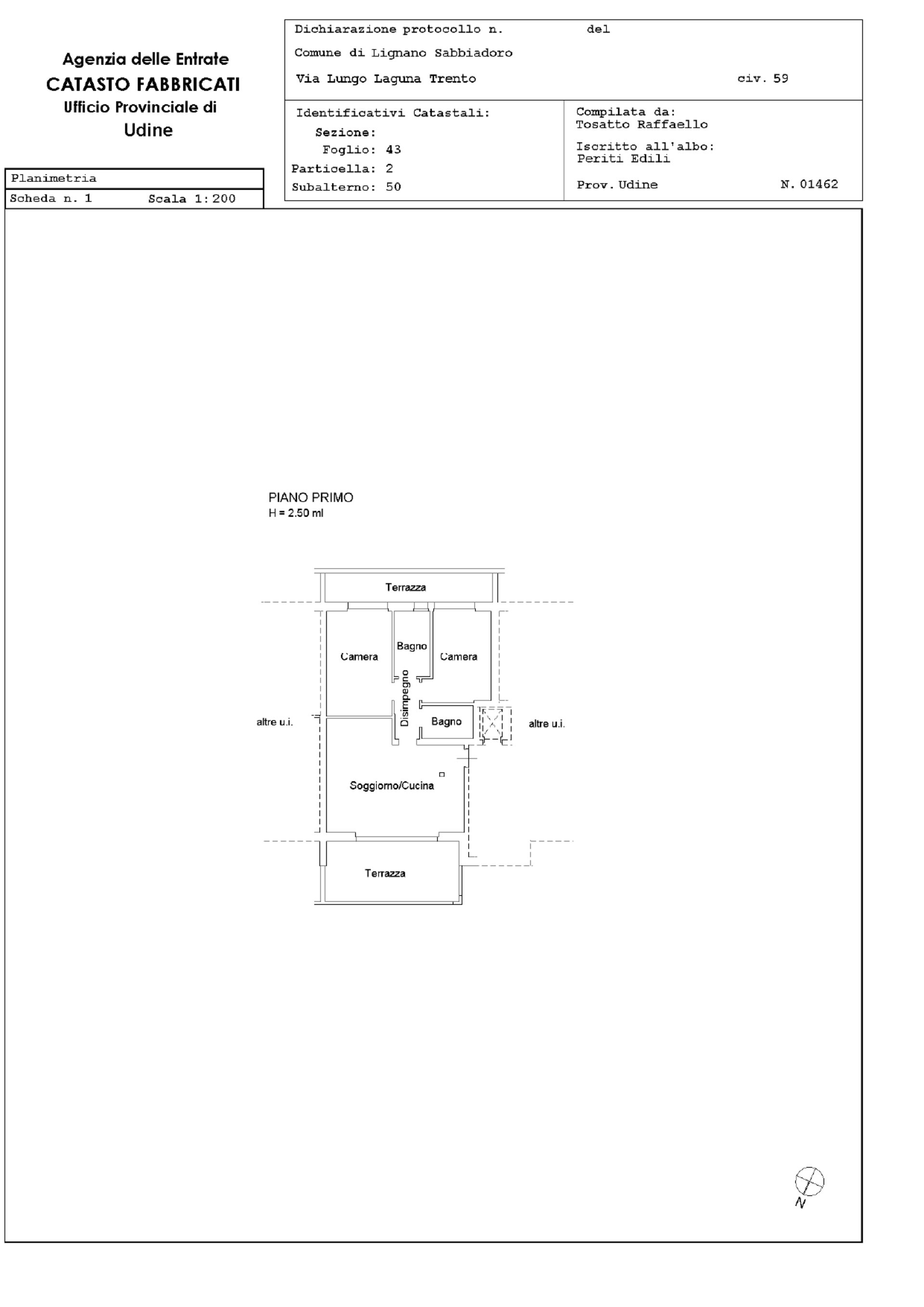
Appartamento al primo piano di recentissima costruzione con riscaldamento a pavimento e climatizzazione composto da ingresso, ampio soggiorno con angolo cottura, disimpegno due camere, due bagni, due ampie terrazze coperte, posto auto coperto e cantina. Climatizzazione, tapparelle elettriche, zanzariere. Abitabile tutto l'anno. Parzialmente arredato.
Informazioni generali:
- Tipo di proprietà: Appartamento
- Stile proprietà: Edificio moderno
- Numero di stanze: 1
- Numero di camere: 2
- Numero di bagni: 2
- Superficie (mq): 102
- Anno costruzione: 2021
- Classe energetica: A+
- Epgl,nren 12,73 KWh/m2anno
- Prezzo: 430.000 €
EUR
USD
JPY
CNY
RUB
INR
AED
Photogallery
